Здания и особняки площадью 219,00 м2, по цене 32000000 по адресу Гамалеи - 23к1

Цена 32 000 000 р.
Вид недвижимости Здания и особняки
Район Щукино
Адрес Гамалеи, 23к1
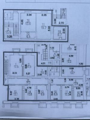
Площадь помещения 219 м2
ГОТОВЫЙ АРЕНДНЫЙ БИЗНЕС, встроенное помещение. Расположенное на 2-х этажах, (цоколь и 1-й этаж), всего 10 кабинетов. Все кабинеты арендованы, с действующими договорами. Арендаторы - мастера бъюти- сферы, косметологических услуг и медицинские кабинеты. Помещение находится в густонаселенном районе, что обеспечивает постоянный поток клиентов.Помещение оборудовано вентиляцией, имеется аварийный выход с обоих этажей. На прилегающей территории свободная автомобильная стоянка.ЭКОНОМИКА:МАП-254000 руб. Доходность 10,1%Окупаемость 9,8% Арендный бизнес работающий. Кроме этого, помещение может быть использован под другие решения, а именно , небольшие кабинеты для личного приема и прочие бизнесы в небольших кабинетах.<br/>Арт. 111547438<br/>
Объявление № 23048830
Дата подачи:
27 июля 2025 г. 7:06
Дата обновления:
27 июля 2025 г. 4:00
Просмотров 15 Хотите продать быстрее?

Продавец
Голышева Елена
email: e.golysheva@napetrovke.ru
Показать номер телефона
Пожаловаться
Комментарии:
Добавить